Make a Call : +8615559090996
Get A Estimate : senko@fjsenko.com
墙地砖带架生产线是一种用于墙地砖生产过程中的自动化设备组合,它能够实现墙地砖在生产过程中的连续性作业,包括从砖坯的放置、输送、养护、加工到成品包装等一系列工序,提高生产效率和产品质量。通过设置养护机构不仅能够利用输送电机实现墙地砖的输送功能,同时利用养护水泵外接水源并通过养护喷头对墙地砖进行养护,通过设置吹风机,通过风刀对墙地砖表面的水进行快速吹走。
墙地砖带架生产线(型号:QDZX-2000)
墙地砖带架生产线是一种用于墙地砖生产过程中的自动化设备组合,它能够实现墙地砖在生产过程中的连续性作业,包括从砖坯的放置、输送、养护、加工到成品包装等一系列工序,提高生产效率和产品质量。通过设置养护机构不仅能够利用输送电机实现墙地砖的输送功能,同时利用养护水泵外接水源并通过养护喷头对墙地砖进行养护,通过设置吹风机,通过风刀对墙地砖表面的水进行快速吹走。
项目布局:
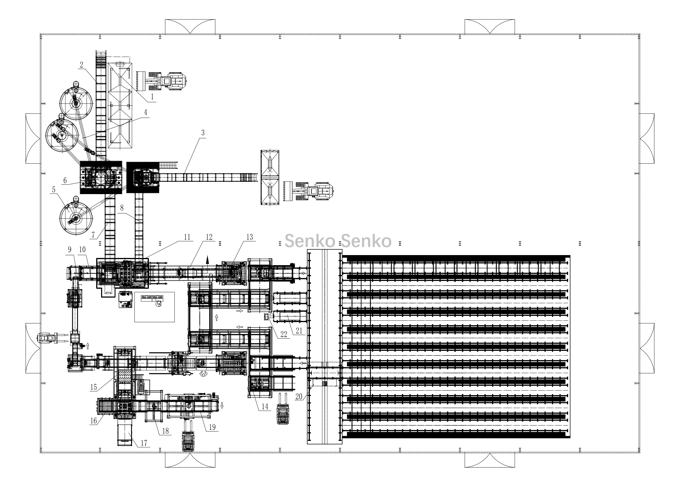
方案一:养护窑仅有一个进出口窑开口,窑口与成型和码垛打包等设备面对面。

| 1、配料机 | 2、底料输送机 | 3、底料输送机 | 4、螺旋输送机 | 5、螺旋输送机 | 6、搅拌机 |
| 7、底料输送机 | 8、底料输送机 | 9、液压自动供板机 | 10、电动送板机 | 11、成型机(双料) | 12、湿产品输送机 |
| 13、升价板机 | 14、吊架机 | 15、码砖机 | 16、木托盘仓 | 17、覆膜机 | 18、绕膜机 |
| 19、上旋转穿剑打包机 | 20,摆渡车 | 21、带架搬运小车 | 22、充电桩 |
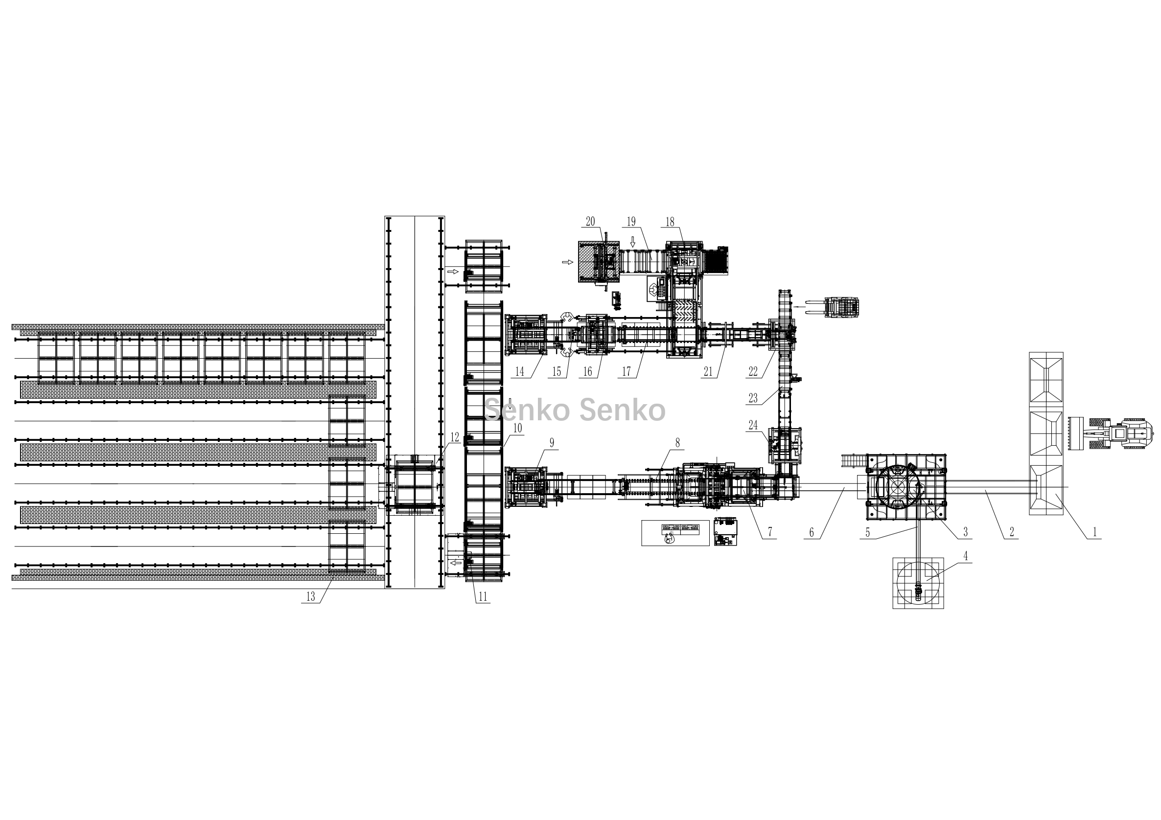
方案二:养护窑仅有一个进出口窑开口,窑口与成型和码垛打包等设备面对面。

| 1、配料机 | 2、底料输送机 | 3、搅拌机 | 4、水泥筒仓 | 5、水泥输送机 | 6、输送机 |
| 7、成型机 | 8、接板机 | 9、升板机 | 10、置砖架输送机 | 11、搬运小车 | 12、摆渡车 |
| 13、养护窑 | 14、降板机 | 15、抬砖预留输送架 | 16、抬板机 | 17、砖板分离 | 18、砖码机 |
| 19、接垛输送滚筒 | 20、下旋转穿剑打包机 | 21、推板机 | 22、码板机 | 23、回板输送机 | 24、上板机 |
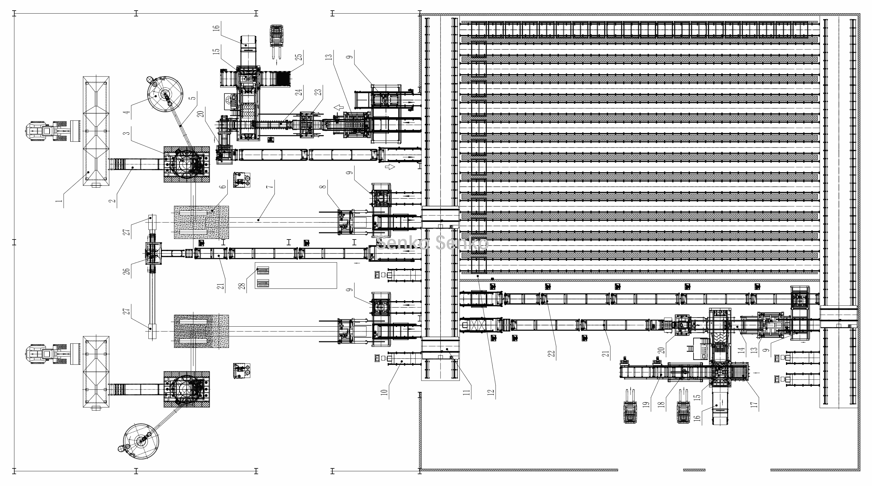
方案三:养护窑有两个进出口窑开口,窑口与成型和码垛打包等设备面对面,且配有两套成型和码垛打包系统。

| 1、配料机 | 2、底料输送机 | 3、搅拌机 | 4、水泥罐 | 5、螺旋输送机 | 6、成型机 |
| 7、湿砖输送机 | 8、升板机 | 9、吊架机 | 10、搬运小车 | 11,RGV 摆渡车 | 12、养护窑 |
| 13、升板机 | 14、送砖架 | 15、码砖机 | 16、覆膜机 | 17、托盘仓 | 18、绕膜机 |
| 19、栈板输送 | 20、码板机 | 21、回板输送 | 22、回架输送 | 23、抬板机 | 24、送砖架 |
| 25、接垛输送 | 26、上板机 | 27、板箱 | 28、控制室 |
产品优势:
1、提高生产效率:自动化的生产流程减少了人工干预,降低了劳动强度,能够实现连续、高效的生产,大大提高了墙地砖的产量;
2、保证产品质量:精确的上砖、输送和加工控制,以及稳定的养护环境,有助于保证墙地砖的尺寸精度、平整度和强度等质量指标,减少次品率;
3、降低生产成本:虽然设备投资较大,但长期来看,由于提高了生产效率、减少了人工成本和原材料浪费,能够有效降低单位产品的生产成本;
4、提升生产安全性:减少了人工直接接触高温、高速运转等危险生产环节,降低了工伤事故的发生率,提高了生产过程的安全性。
应用场景
