Make a Call : +8615559090996
Get A Estimate : senko@fjsenko.com
固废制砖生产线是一种将固体废弃物转化为建筑用砖的生产系统,采用调频调幅振捣技术,达到免烧再生砖密实度高且节省能源的目的。如银马建筑垃圾制砖机,可生产多种免烧再生砖,能按需求制作模具成型。
固废制砖生产线 (型号:GFZX-2000)
固废制砖生产线是一种将固体废弃物转化为建筑用砖的生产系统,采用调频调幅振捣技术,达到免烧再生砖密实度高且节省能源的目的。如银马建筑垃圾制砖机,可生产多种免烧再生砖,能按需求制作模具成型。
项目布局:
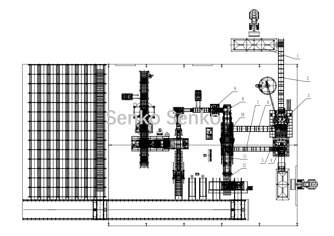
方案一:养护窑仅有一个进出窑开口,且开口与成型和打包等设备平行。

| 1、配料机 | 2、底料输送机 | 3、底料搅拌机 | 4、面料搅拌机 | 5、面料输送 | 6、底料输送 |
| 7、输送皮带 | 8、上板机 | 9、回板输送 | 10、成型机 | 11、湿砖输送 | 12、横向叠板机 |
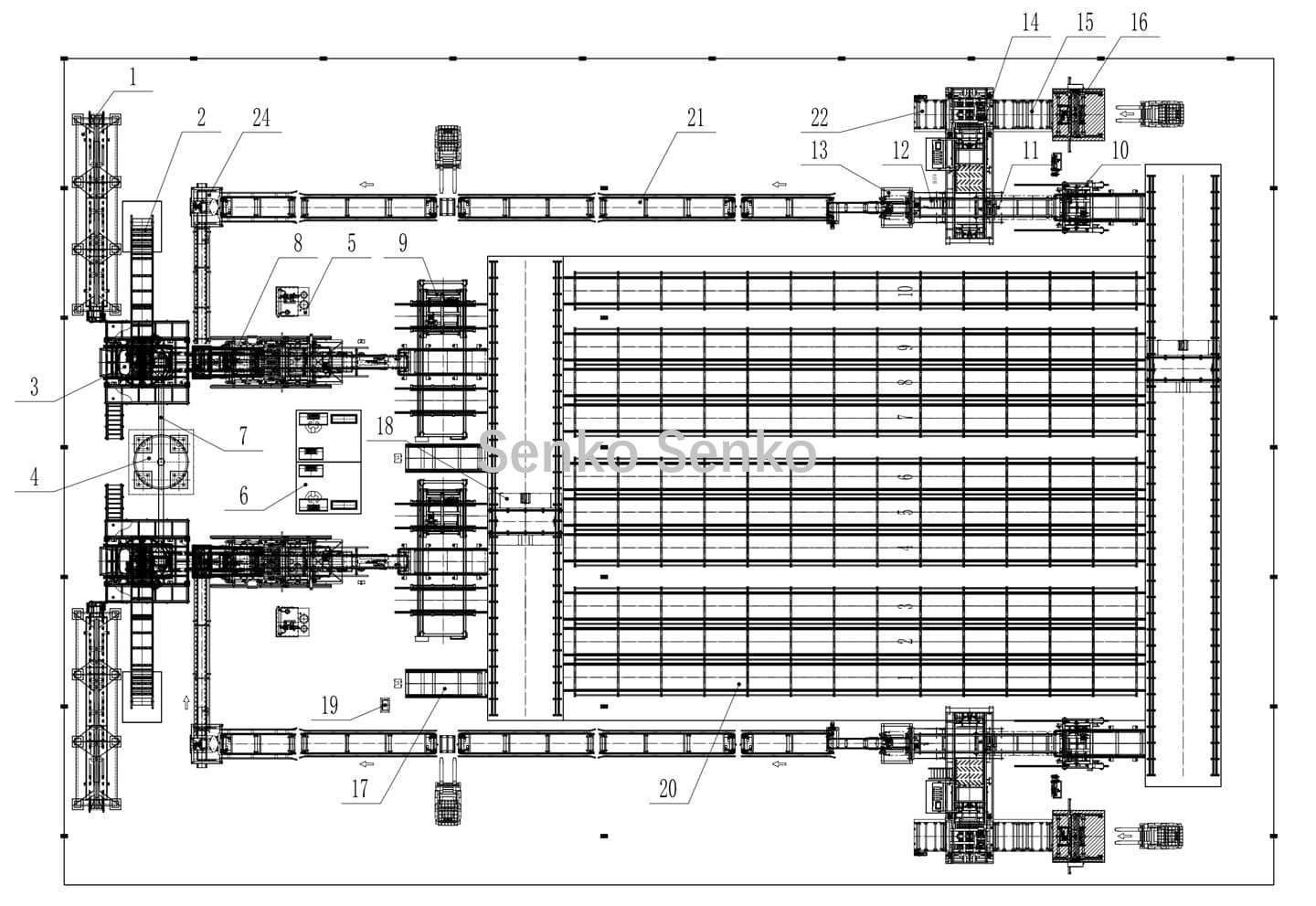
方案二:养护窑有两个开口进出砖垛,且有两套制砖和打包系统。

| 1、配料机 | 2、底料输送机 | 3、搅拌机 | 4、水泥罐 | 5、油箱 |
| 6、电控柜 | 7、螺旋输送机 | 8、成型机 | 9、横向叠板机 | 10、抬板机 |
| 11、砖板分离机 | 12、翻板机 | 13、码板机 | 14、码砖机 | 15、接垛输送 |
| 16、下旋转穿剑打包机 | 17、搬运小车 | 18,RGV摆渡车 | 19、充电桩 | 20、养护窑 |
| 21、回板输送 | 22、托盘仓 | 24、上板机 |
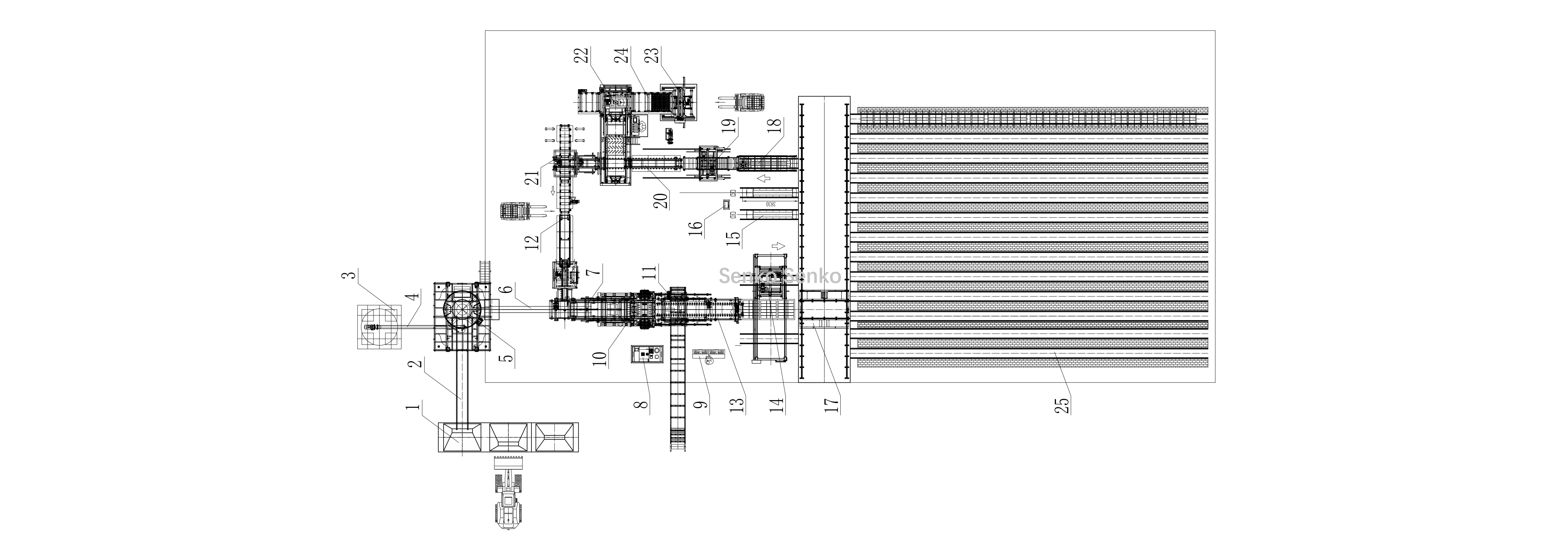
方案三:养护窑仅有一个进出口窑开口,且开头与成型和打包等设备面对面。

| 1、配料机 | 2、底料输送机 | 3、水泥罐 | 4、螺旋输送机 | 5、搅拌机 |
| 6、混合物输送机 | 7、上板机 | 8、液压站 | 9、电控柜 | 10、成型机 |
| 11、湿砖输送 | 12、回板输送 | 13、湿砖输送 | 14、横向叠板机 | 15、搬运小车 |
| 16、充电桩 | 17,RGV摆渡车 | 18、抬板预留架 | 19、抬板机 | 20、送板机 |
| 21、码板机 | 22、码砖机 | 23、下旋转穿剑打包机 | 24、接垛输送 | 25、养护窑 |
产品优势:
1、原材料费用低廉,来源广泛,运输成本低,制砖机价格相对较低,且有国家政策扶持,具有较大的社会效益和经济效益;
2、生产的砖强度高,性能良好,能有效节约土地资源,推动建筑墙体材料产业结构调整。
应用场景
