Make a Call : +8615559090996
Get A Estimate : senko@fjsenko.com
砖块包装和捆扎机完全指南
在竞争激烈的建筑材料行业,砖块和砌块的包装是至关重要的最终环节。每一块移动、开裂或损坏的砖块都意味着收入损失和工期延误。几十年来,人工捆扎一直是标准做法,但如今,这种做法正逐渐被专门设计的自动化机械所取代,这些机械能够应对砌体产品巨大的重量、粗糙的表面以及严格的稳定性要求。
本指南探讨了正在革新砖块运输准备方式的技术,确保砖块到达工地即可投入使用。

为什么砖块包装需要专用机械
包装砖块是一项独特的挑战。它们重量巨大(单个托盘的重量可超过 2000 公斤),且表面粗糙,摩擦力极高,会迅速损坏标准包装材料。首要目标是确保货物稳定性——防止运输过程中因颠簸而发生移动,从而避免产品损坏、托盘坍塌和安全隐患。 自动化捆扎包装机 专门设计用于解决这些问题,施加持续、高强度的约束,这是人工方法无法比拟的。
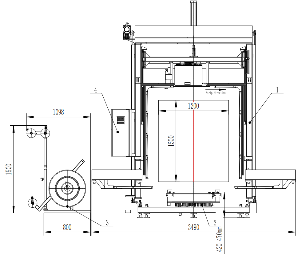
砖块包装的核心机械类型
目前,现代砖块包装生产线主要由两种先进的机器类型主导: 自动托盘捆扎机 以及交叉臂捆扎机。
1. 自动托盘捆扎机
这些是重型全自动系统,专为固定预组装的砖块托盘而设计。它们通常采用坚固的钢架,形成一个托盘通过的“门”。安装在移动小车或龙门架上的捆扎头,可以垂直、水平或交叉的方式捆扎聚酯(PET)捆扎带。
· 工作原理:整个过程完全自动化。装载货物的托盘通过传送带进入机器。传感器检测托盘位置后,机器会施加精确且可重复的力,对捆扎带进行拉紧和热封,然后将固定好的货物弹出。
· 最适合:托盘尺寸标准化的大批量生产设施,追求最大产量和节省人工成本。
2. 十字臂式(或“剑式”)捆扎机

这些多功能机器的特点是配备一个可移动的“剑”或机械臂,用于将捆扎带缠绕在货物上。这种设计尤其适用于制作稳定的无托盘砖块,以及需要非常紧密捆扎的应用。
· 工作原理:机器的横臂伸出,将带子穿过预先设定的路径,环绕固定的砖堆,然后缩回,最后拉紧并密封带子。模块化设计允许定制框架尺寸。
· 最适合:需要灵活包装形式的作业,包括无托盘捆扎,或空间受限且货物必须以固定位置包装的作业。
3. 完整产品线中的其他技术
现代系统通常集成的不仅仅是捆扎带:
· 六面包装机:为了最大限度地防止潮湿、灰尘和紫外线照射,一些生产线增加了一个拉伸膜包装站,将整个砖块立方体包裹在保护性塑料外壳中。
· 机器人搬运:工业机器人越来越多地用于从窑车中卸下砖块,并在捆扎前将其排列成精确的层或包,从而最大限度地提高灵活性和轻柔搬运。
主要技术规格和性能
在评估这些机器时,以下几个技术因素至关重要:
· 捆扎材料:高强度聚酯(PET)捆扎带因其卓越的强度、耐用性和耐磨耐候性而成为行业标准。用于重型砖块的常用宽度为12毫米和16毫米。
· 张力:机器必须产生显著的、电子控制的张力来固定负载,通常从托盘捆扎机的 5000 N(约 510 kgf)到特殊应用中能够超过 4000 N 的系统。
· 吞吐量速度:效率至关重要。自动托盘捆扎机通常每小时可处理 15-20 个托盘,单次捆扎周期耗时 15-30 秒。更先进的模块化系统可实现每条捆扎带 6 秒的快速循环。
· 定制化:机器很少是千篇一律的。它们会根据特定的托盘尺寸(常见范围:宽 600-1200 毫米,长 800-2400 毫米)和不同的负载高度进行调整。
为您的运营带来切实利益
投资自动化砖块包装技术可带来可衡量的回报:
· 提升产品完整性:自动化张力控制可实现更紧密、更均匀的包装,显著减少砖块在运输过程中的移动、碎裂和破损。这直接减少了客户投诉和浪费。
· 大幅节省劳动力:自动化繁重且重复性的工作,使工人能够从事更高价值的工作。一台机器即可替代多个人工捆扎工位,从而提高整条生产线的效率。
· 提升工作场所安全:无需人工搬运重型绑带和工具,即可降低肌肉骨骼损伤(如拉伤和扭伤)的风险。此外,保持货物稳定也使叉车操作员搬运货物更加安全。
· 减少停机时间:像模块化的 Z-20 这样的现代化系统设计便于维护。关键部件无需重型起重设备即可在几分钟内更换,从而确保您的生产线持续运转。
实施和整合方面的考虑
成功整合这项技术需要周密的计划:
1. 生产线兼容性:评估机器如何与现有输送机、砖块堆垛机和仓库物流系统对接。必须核实占地面积、高度净空和电源(通常为 415V 三相)。
2. 材料选择:与供应商合作,根据您砖块的重量和稳定性要求,选择最佳的PET打包带等级、宽度和厚度。合适的耗材对性能至关重要。
3. 培训和支持:确保操作人员和维护人员接受有关机器操作、安全规程(包括紧急停止和防护系统)以及日常预防性维护的全面培训,以确保机器在多尘的砖厂环境中的使用寿命。
砖块包装的未来
目前的趋势是向完全集成、智能化的包装生产线发展。试想一下,在一个系统中,机械臂负责从托盘上卸下砖块并进行摆放,传感器检测缺陷,捆扎机根据货物重量施加定制的张力约束,最后由包装机贴上保护膜和品牌标识膜——所有这些操作都只需极少的人工干预,并将数据传输到中央监控系统。
这种自动化水平,正如全球先进装置所展现的那样,不再是未来概念,而是提高重粘土行业韧性、效率和质量的切实途径。
如果您希望升级砖块包装流程,最好的第一步是咨询专业的设备供应商。他们可以分析您的具体产品、产量和场地限制,从而推荐最佳的自动化捆扎解决方案。如需了解具体机器型号和集成案例研究的更多详情,强烈建议您查阅领先制造商的技术文档。